关于举行杭州电子科技大学第七届大学生工程训练综合能力竞赛暨第七届浙江省大学生工程训练综合能力竞赛选拔赛的通知

发布者:系统管理员发布时间:2020-12-01浏览次数:1549

为培养大学生的创新意识和创新能力,引导学生在学习过程中培养创新设计能力、综合设计能力和协作精神;加强大学生动手能力的培养和工程实践的训练,提高我校学生的机械设计水平,同时丰富和活跃校园科技创新学术氛围,经研究,决定举办杭州电子科技大学第七届大学生工程训练综合能力竞赛暨第七届浙江省大学生工程训练综合能力竞赛选拔赛。现将竞赛主题与内容等有关事项通知如下:

一、主题与内容

杭州电子科技大学第七届大学生工程训练综合能力竞赛暨第七届浙江省大学生工程训练综合能力竞赛选拔赛的命题如下:

本届竞赛设置3个赛道11个赛项:

1)工程基础赛道,包括:势能驱动车、热能驱动车2个赛项;

2)“智能+”赛道,包括:智能物流搬运(智能机器人和桥梁结构设计2个赛项)、生活垃圾智能分类、水下管道智能巡检和智能配送无人机5个赛项;

3)虚拟仿真赛道,包括:飞行器设计仿真、智能网联汽车设计、工程场景数字化和企业运营仿真等4个赛项。

1 竞赛设置的赛项

1.工程基础赛道竞赛命题

1)势能驱动车赛项

自主设计并制作一台具有方向控制功能的自行走势能驱动车,该车行走过程中必须在指定竞赛场地上与地面接触运行,且完成所有动作所用能量均由重力势能转换而得,不允许使用任何其他形式的能量。重力势能通过自主设计制造的1kg±10g重物下降300±2mm高度获得。在势能驱动车行走过程中,重物不允许从势能驱动车上掉落。重物的形状、结构、材料、下降方式及轨迹不限,要求重物方便快捷拆装,以便现场校核重量。

势能驱动车的结构、设计、选材及加工制作均由参赛学生自主完成。

2)热能驱动车赛项

自主设计并制作一台具有方向控制功能的自行走热能驱动车,该车行走过程中必须在指定竞赛场地上与地面接触运行,且完成所有动作所用能量均由热能转换而得,不允许使用任何其他形式的能量。热能是通过(现场提供)液态乙醇(浓度95%)燃烧所获得。竞赛时,给每个参赛队配发相同量的液体乙醇燃料,产生热能装置的结构不限,由参赛学生自主完成,但必须保证安全。

热能驱动车的设计、结构、选材及加工制作均由参赛学生自主完成。

2.“智能+”赛道

1)智能物流搬运-智能机器人赛项

以智能制造的现实和未来发展为主题,自主设计并制作一台按照给定任务完成物料搬运的智能机器人(简称:机器人)。该机器人能够通过扫描二维码或Wi-Fi网络通信等方式领取搬运任务,在指定的工业场景内行走与避障,并按任务要求将物料搬运至指定地点并精准摆放(色环或条形码)。

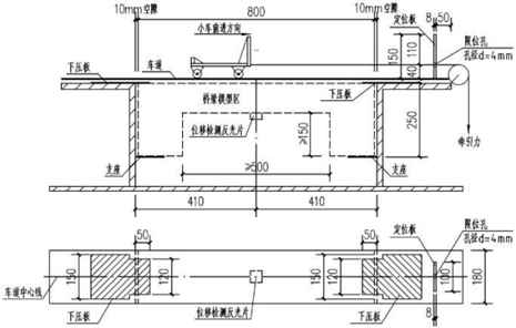
2)智能物流搬运-桥梁结构设计赛项

根据如图2所示的桥梁区间尺寸,自主设计单跨桥梁,可在校内完成桥梁模型构件的制作,将作品带到现场。要求桥梁模型材料必须采用本色侧压双层复压竹皮(单张竹皮厚度不大于0.5mm,其力学性能参考值:弹性模量1.0×104MPa,抗拉强度60MPa)、502胶水(制作构件用)。不允许采用颜料对模型作美术装饰,不得使用非组委会指定的其它任何材料,否则取消其参赛资格或比赛成绩。

2桥梁区间尺寸示意图

3)生活垃圾智能分类赛项

以日常生活垃圾分类为主题,自主设计并制作一台根据给定任务完成生活垃圾智能分类的装置。该装置能够实现“可回收垃圾、厨余垃圾、有害垃圾和其他垃圾”等四类城市生活垃圾的智能判别、分类与储存。

4)水下管道智能巡检赛项

本赛项以水下管道智能检测的现实场景和未来发展主题,利用智能技术自主设计一台按照给定任务完成水下管道检测的水中机器人(简称:水中机器人),该水中机器人能够沿着水下管道运动,检测管道上的吸附物,并发出警报,并完成移除、回收等任务。任务执行过程中不允许使用包括遥控在内的任何人工交互的手段控制水中机器人及辅助装置。

5)智能配送无人机等赛项

以未来智能无人机配送为主题,结合实际应用场景,自主设计并制作一架按照给定任务完成货物配送的多旋翼智能无人机(简称:无人机)。该无人机能够自主或遥控完成“识别货物、搬运货物、越障、投递货物”等任务。

3.虚拟仿真赛道根据“第七届全国竞赛组委会虚拟仿真赛道组织的通知”执行,竞赛流程细则请关注后续通知。

浙江省赛命题相关细则将在第二轮通知中公布。

所有参加竞赛的作品必须与本届大赛的主题和内容相符,与主题和内容不符的作品不能参赛。

二、竞赛组织

竞赛由教务处主办,机械工程学院承办。

学校将成立校第七届大学生工程训练综合能力竞赛组委会,负责竞赛的组织领导工作。组委会下设工程训练综合能力竞赛专家评审组,负责参赛作品的评审、评奖和省赛参赛作品推荐等工作。

三、赛事安排

1.报名截止时间:暂定20201210日。

2.校赛初步计划:根据省赛第一轮通知文件,各参赛学校应在2021122日提交参加省赛的报名表,现暂定于2021120日举行校赛。

四、参赛对象及报名

1.参赛选手:正式注册的全日制在校学生。

2.组队规则:每队参赛学生不超过3人,指导教师不超过2名。

3.各队的报名表(模板见附件)提交至邮箱:1848327751@qq.com

五、评奖办法

校赛获奖等级分特等(特别优秀的队,可空缺)、一等、二等、三等及成功参赛奖,其中特、一等奖10%,二等奖20%,三等奖30%,成功参赛奖若干。学校将按照省赛参赛规则从校赛优秀作品中选出若干作品参加省预选赛。

六、联系方式

樊志华老师:手机18969037780,邮箱179672510@qq.com

机械学院工创负责人何榕霖:手机13777847581,邮箱2012078873@qq.com

附件:杭州电子科技大学第七届大学生工程训练综合能力竞赛报名表.docx

教务处、机械工程学院

2020121


地址:杭州市杭州经济开发区白杨街道2号大街1158号  邮编:310018
邮箱:hdujwc@hdu.edu.cn  电话:0571-86915011
Copyright ©2016 杭州电子科技大学教务处All Rights Reserved